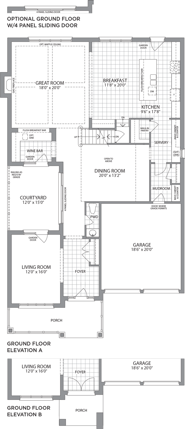
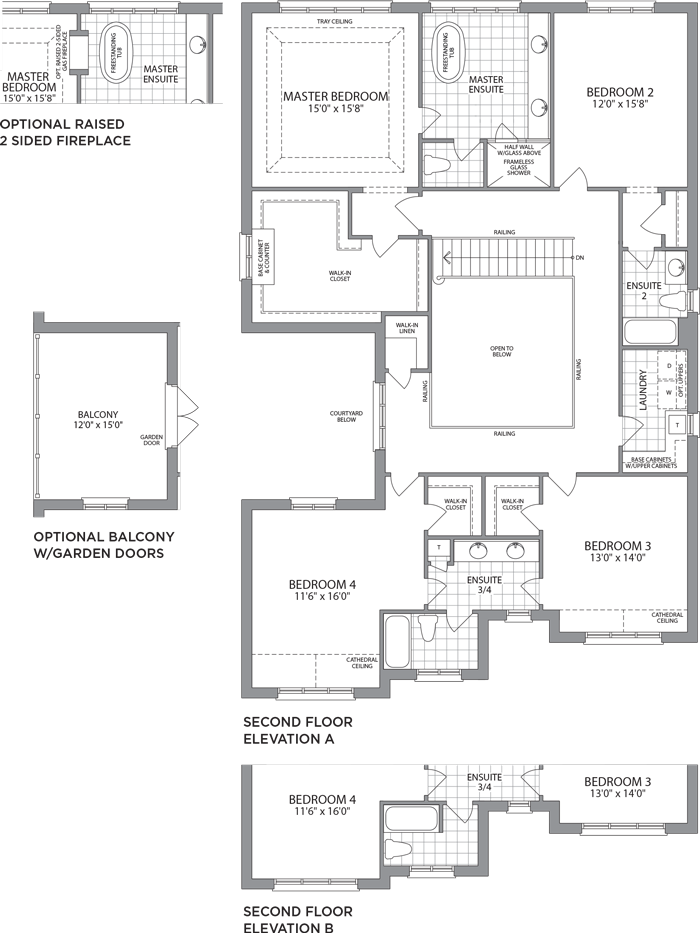
The Brook Ridge | Woodbury Trails


The Brook Ridge

The Brook Ridge, Elevation a

ELEVATION a

4,009 sq.ft

The Brook Ridge, Elevation b

ELEVATION b

4,018 sq.ft


ground Floor

second Floor

basement

Plans and specifications are subject to change without notice. E. & O. E.
Actual usable floor space may vary from the stated floor area.
All renderings are artist’s concept